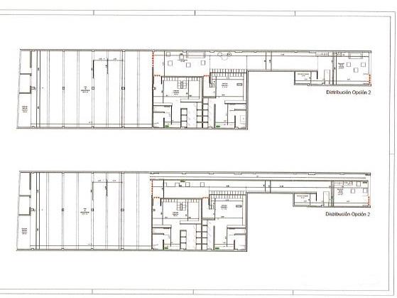
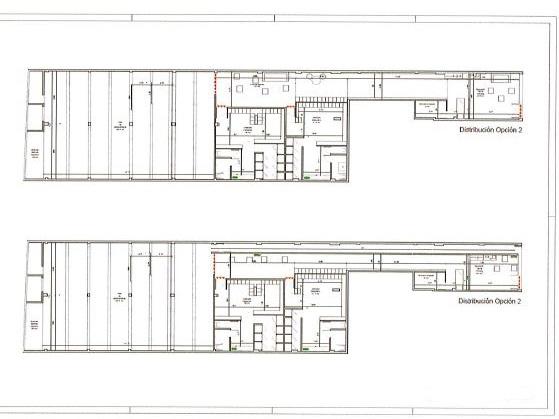
Type
Commercial |
Surface
614 м2
Useful surface
м2
Rooms
Bedrooms
Bathrooms
Plot
м2
Features:


